Kahta İlçesine İki Müjde Birden
AK Parti Adıyaman Milletvekili Mustafa Alkayış, iki farklı meslek gurubuna yönelik yapılacak olan yerler için kamu yararı alındığını müjdeledi.
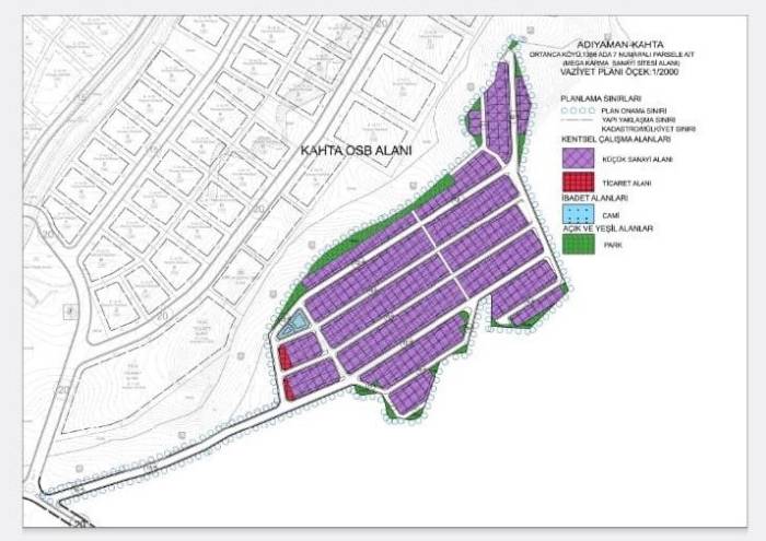
İçişleri Bakanlığı tarafından Kahta ilçesi Ortanca köyü sınırlarında yapılacak olan Mega Karma Tekstil Kent Sanayi Sitesi Yapı Kooperatifi ve Salkımbağ köyü sınırlarında yapılacak Demir Doğramacılar Toplu İş Yeri Yapı Kooperatifi için kamu yararı kararı alındı.
AK Parti Milletvekili Mustafa Alkayış, konuya ilişkin yaptığı açıklamada, "Kahta ilçemize yapılacak 322 işyerinden oluşacak Mega Karma Tekstil Kent Sanayi Sitesi Yapı Kooperatifi ile 210 işyerinden oluşan Demir Doğramacılar Toplu İş Yeri Yapı Kooperatifi için verdiğimiz uğraşlar neticelendi. İçişleri Bakanımız Ali Yerlikaya'nın onayıyla buralar için Kamu Yararı Kararı alınmıştır. Değerli Bakanımıza destekleri vesilesiyle teşekkür ediyorum. Kahta ilçemize hayırlı ve uğurlu olmasını diliyorum" dedi.

Kaynak:IHA